英國RK旋轉涂布打稿機ROTARY KOATER基本單元可帶一個工作站或兩個工作站(工作站指:幫助達到受印物(卷筒料)與涂料等接觸完成涂布或印刷、復合等功能的機構,如:凹印/柔印等工作頭組件,以下我們會對每一個工作機構作具體之介紹。
卷筒料寬度
本機器可接受的卷筒料寬度達到305mm.
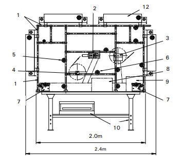
1.主體框架:
由許多堅固的直徑為一寸的鋼管構成,它們被合理地連接,縱橫構建在機器的平臺上。而機器的其它附件便根據需要安裝在這個框架上的各個適當的部位上。
2.復合和剝離工作站
該工作站由一個橡皮輥和一個金屬棍構成一個氣動操作、壓力可調的壓合裝置。最大的壓合力在氣壓為5.5個bar下可達2.3kg/linear cm.。為適應不同工作要求和卷筒紙運行路線的需要,此工作站能以3種形態(平放,垂直,倒立)安裝。顧客還可以根據需要選購一個可電熱和溫度精確控制的金屬輥以提高復合站的性能。
3.成品收卷站
該站通過一個可調氣動操作離合器驅動,并對卷筒料的張力進行控制。而且該工作站的轉軸能順時針或逆時針轉動,所以無論受印物涂層表面朝卷筒軸里面或朝外面進行卷收均可解決。
4.放卷工作站
該站在側面安裝了一個可調的制動器對卷筒料壓力進行控制。對于復合印刷或其它由于便利性的設計需要,顧客可以增加一個這樣的送傳站。成品收卷站和放卷工作站均裝有一個自動擴伸的夾盤以配合標準內部直徑為75mm的卷料筒心軸。對特殊的訂單要求我們可提供不同的直徑。
5.惰輪(傳輸輪)
8個名義直徑為50mm的惰輪在購買時附送,其中2個為可調卷筒料方形輥,2個速接輥。同時我們也能根據某些需要例如柔性差一點的卷筒料印刷而提供直徑達75mm的輥子。
6.卷筒料速度顯示器
通過一個額外的惰輪的感應作用,卷筒料的速度以米/分被顯示在馬達控制箱上面。當然,這一惰輪裝置可被方便地分離并置于主體構架上某一個您認為便利的地方。

7.涂布工作站
顧客可以根據需要(涂布要求)選擇一個或兩個涂布工作站(ROTARY COATER涂布機基本型只提供一個涂布工作站予顧客)。該站被安裝在平臺兩端的任何一端以便安裝各種附加的涂布/印刷頭。
8.動力裝置
標準配置規定,該組件含一個可變速流電主驅動馬達(兩種型號可供選擇:非防爆型和防爆型),功率為:0.56kw,傳動比為10:1的蠕動減速齒輪箱(變速箱),這樣,卷筒料末端的速度范圍可在5到50米/分。其它傳動比的齒輪箱也可以提供,這樣,最大卷筒料的速度范圍可在0.5到90米/分之間。
非防爆型驅動:指提供適合安裝在靠近ROTARY COATER涂布機的墻壁上的速度控制箱。
防爆型型驅動:指:該驅動的馬達按照歐洲標準:EN50-014和非防爆型50-018生產。防爆保證:1區;氣體類為2a和2b下的T4溫度級;提供適合安裝在非危險區的墻壁上的速度控制箱。在控制箱和主機之間設有一個控制電路,由于其分流-二極真空管的安全屏障作用,使得ROTARY COATER涂布機本身有自我安全保護的作用。
9.控制臺
顧名思義,集:緊急停動,成品收卷站卷物張力控制,機器速度和其它常規性的應用氣動控制和儀表于一個控制面板上的控制箱。
10.工作臺組件
此乃鋼制的堅固的工作平臺(圖片上顯示的黑色桌子),它與ROTARY COATER涂布機的主體構架和涂布工作站緊密結合,并在其上的二層置有一個抗重壓的可鎖抽屜,方便了涂布/印刷圓輥、工具和其它附件的存儲。



